Tiny House on Wheels

For Sale

Denali Tiny Home

Starting at:
$151,227
Built in:
Wisconsin
Step into Utopian Villas' Denali, a remarkable park model tiny home, designed to create an idyllic sanctuary away from the stress of everyday life. This elegant 400-square-foot dwelling harmonizes comfort, functionality, and luxury in a meticulously designed space. Drawing inspiration from the majestic Alaskan National Park, the Denali's architecture mimics the rugged beauty of a mountain range, further accentuating its seamless connection with the natural surroundings.

Specifications

Base Price(USD)

$151,227

Square Feet(SF)

400
sq.ft.

Sleeps

Up to 6

Layout

1 Loft | 1 Bed | 1 Bath

Built by

Utopian Villas

Ships To

United States

Type

Tiny House on Wheels

Dimensions(in FT)

36' x 12'
Your Wilderness Luxury Haven

Immerse yourself in the splendor of Utopian Villas' Denali, a park-model tiny home designed to transport you away from the monotony of everyday life. Exuding a sense of peace and tranquility, this charming 400-square-foot abode presents you with an elegant blend of comfort and luxury, providing ample space for all family members to relish.

Enter the Denali and immediately be greeted by high-end amenities that set this tiny home apart. Kohler® plumbing products signify a commitment to quality, while the innovative insulated floor system brings a patented touch of innovation to the living space. This home knows no limits when it comes to storage; in-floor spaces cleverly maximize utility without encroaching upon the aesthetics of the room. Journey up the spiral staircase or through the loft entry to an upper deck, your own private vantage point from which to drink in the serenity of your surroundings.

The kitchen area is designed for both practicality and entertainment. A distinctive wrapping kitchen island dominates the room, an ideal spot for a family meal, a gathering of friends, or a quiet dinner for two. Custom-built Wolf™ cabinets offer additional storage while maintaining an air of sophistication and elegance.

Moving beyond the kitchen, the Denali ensures your connection with the outdoors is never lost. Sunlight floods the home through the beautiful Pella® windows, their unique architectural design augmenting the natural illumination. This, along with the edgy lines and rustic exterior reminiscent of its namesake, the mountainous Alaskan National Park, ensures the Denali harmonizes perfectly with any outdoor setting.

The exterior features a distinct blend of textures, its real wood finish creating a dialogue with the surrounding wilderness. The home sports multiple rooflines, mimicking the profile of a mountain range, and three decks, one elevated to emulate an observation deck experience. The largest of these decks includes glass walls, further merging the indoors and the outdoors.

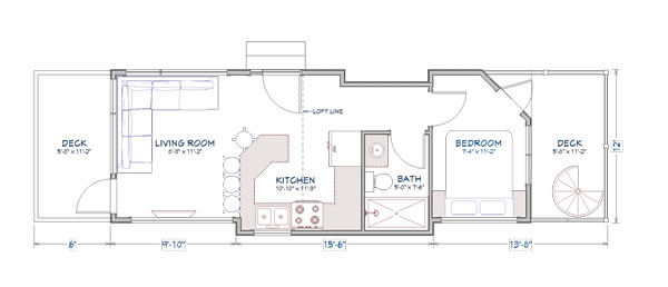
Denali's floor plan unfolds to reveal a spacious, warm layout. The kitchen's peninsula provides seating for four and, when coupled with the open living room, creates an environment perfect for hosting a party or an intimate gathering. The ambient electric fireplace adds an inviting ambiance, leading the eye to the vaulted design that frames the spiral staircase to the upper deck.

Walk toward the rear of the home reveals a luxurious full-size bath featuring a spa-like shower, an ideal spot for unwinding after a long day. The master suite is a haven of relaxation, accommodating a queen-size bed and providing exclusive access to one of Denali's decks for tranquil outdoor moments.

With 400 square feet of meticulously designed living space, this tiny home offers a harmonious blend of rustic charm and modern luxury, providing an experience that brings you closer to the beauty of the outdoors without compromising on comfort or style. The Denali, a testament to Utopian Villas' commitment to excellence, is more than just a home; it's your private retreat nestled in the heart of the wilderness.

INterested in this tiny home?

Learn More
Love this tiny house? Share it with your friends with the links below!

Our Thoughts

The way in which the home beautifully merges the indoors with the outdoors is especially noteworthy, bringing in a unique sense of tranquility and connectedness to nature. Its luxury amenities do not sacrifice the functionality, making it a truly versatile living space suitable for various lifestyle needs. The house's design aesthetic, combining rustic charm with modern elegance, is both impressive and inviting. It offers an unrivaled living experience that elegantly harmonizes comfort, style, and the serenity of nature.

Our Ratings

Layout: 7/10

Design: 8/10

Quality: 7/10

Value: 7/10

Overall Rating

7.25 / 10

More Small Homes

View All Tiny Homes

Get Early Access to New Models

Occasionally: New Models, Special Offers, Small House Guides
Never: Junk or Spam and we don't sell or misuse your email
Welcome to the fam! We're excited to have you join the community.
Oops! Something went wrong while submitting the form. Please try again or use the form below.